The “Ruộng”
Project name: The “Ruộng”
Architect’s Firm: H.2
Contact e-mail: H2arch.vn@gmail.com
Project location: Phuoc Thuan commune, Xuyen Moc Province, Ba Ria – Vung Tau Province, Vietnam
Completion Year: 2019
Gross Built Area: 4964 m2
Other participants:
Construction: Local workers
Photo credits: Quang Dam
Photographer’s website: http://quangdam.com
Nếu ai từng sinh ra và lớn lên ở vùng quê, hẳn không thể quên được hình ảnh cánh đồng lúa thanh bình vào mùa trổ bông ngát thơm mùi sữa non ngọt ngào. Bức tranh ấy khắc sâu vào tâm khảm người làm nghề như H2 chúng tôi, lại đồng điệu trong tâm hồn với vị gia chủ quanh năm bôn ba kinh doanh đến lúc tìm chốn yên ả để dừng chân. Thế là chúng tôi gặp nhau và ý tưởng về The “Ruộng” bắt đầu từ đó.
Khu đất tọa lạc tại xã Phước Thuận, huyện Xuyên Mộc, tỉnh Bà Rịa – Vũng Tàu, kề cận với khu du lịch biển sầm uất của Hồ Tràm nhưng lại nép mình vào cuối con đường làng, nơi dẫn ra khu đồng ruộng gặt hái bao đời của người dân địa phương.
Với bối cảnh đậm chất miền quê, chủ đề xuyên suốt của The “Ruộng” là nơi chốn để trở về an dưỡng tạm lánh những ồn ào khói bụi và guồng sống hối hả của thành thị. The “Ruộng” tận dụng tối đa khung cảnh cánh đồng xung quanh để có view mở, trồng các loại cây trong khu vực: cau, dừa, sen súng, rau lang, muống, lúa… để dễ thích nghi và tiết kiệm chi phí. Tất cả các chi tiết liên quan làng quê xưa cũ như mái ngói truyền thống, mái rơm, xà gồ gỗ cây… được đưa vào sử dụng trong hình thức kiến trúc. Kết cấu từ hệ kèo sắt gỗ kết hợp chắc chắn. Vật liệu và nhân công toàn bộ khai thác địa phương để giảm tối đa chi phí đầu tư, đồng thời tạo công ăn việc làm cho người dân nơi đây.
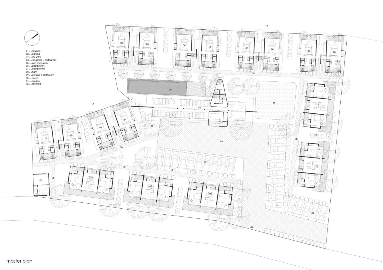
-Tổng khu gồm 3 khu chức năng chính, gồm:
1. Lễ tân nhà hàng hồ bơi, trong đó nhà hàng và hồ bơi view lúa, lễ tân view ao nội bộ. Hình thức kiến trúc: ý tưởng mái truyền thống, lợp rơm chống đỡ bởi hệ vì kèo sắt sơn màu. Tường dùng các vòm cong nhịp điệu kết hợp với tườnng đá tự nhiên.
2. Bungalow view nội bộ gồm 2 phòng ngủ độc lập, sử dụng hệ thống phòng khách bếp ăn chung, kết nối với nhau bằng 1 mái + hiên lớn phía trước. Mái lợp ngói sử dụng hệ vì kèo gỗ sắt.
3. Bungalow song lập view lúa, thiết kế sử dụng hướng không gian mở về phía đồng lúa, mái sử dụng hệ vì kèo sắt gỗ, phía trên lợp ngói, lấy cảm hứng từ hình ảnh cánh diều.
Đích đến cuối cùng của The “Ruộng” không chỉ là nơi chốn để về an dưỡng, mà còn là nơi con người được chạm đền gấn nhất với thiên nhiên, chạm đến những giá trị xưa cũ và hồi tưởng lại miền quá khứ bình yên mà ai sinh ra ở vùng quê đã từng.